HL型环链斗式提升机适用于垂直输送磨琢性较大的粉状、粒状及小块状物料,物料温度不超过250℃,输送高达40米?;妨炊肥教嵘捎锰腿∈阶傲稀⒒旌鲜交蛑亓π读?,轮缘采用组合链轮,更换方便,链轮轮缘经特殊处理寿命长,下部采用重力自动张建装置,避免打滑和脱链。

1、材质分类
碳钢:采用Q235碳钢材质,适合对耐腐蚀要求和卫生要求不高的物料使用,成本较低。
不锈钢:采用SUS304/316不锈钢材质,具有耐酸、碱、盐等腐蚀,高温下抗氧化、硫化、氯化、氟化、干净卫生等特点。

2、外形分类
单通道:中间一个箱体,单通道环链斗式提升机是料斗的上行和下行都是在一个机壳通道内。
双通道:中间两个箱体,上升通道和下降通道分别独立,不宜荡料,提升效率高,提升量要比单通道垂直提升机提升量高30%左右。





HL环链型斗式提升机是生产线中常用的斗式提升机设备,适用于输送堆密度不大于1.5t/m3的物料的粉状、粒状、小块状的磨琢性较大的物料,如粮食、煤、水泥、碎矿石、化肥等,提升高度高达40米,物料的温度不得超过250℃。
环链斗式提升机适用于各种散状物料垂直提升,物料温度≤250℃

1、运行平稳、输送效率高。
2、料斗形式多,可根据物料性质选用。
3、适应性强、安装维修方便、使用寿命长。
4、整机体积小、转速高、可确??焖倬仁渌?。

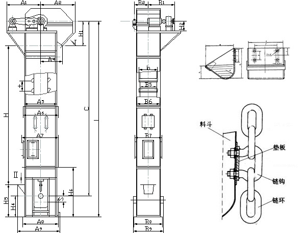
HL型环链斗式提升机由运行部件、驱动装置、上部装置、中部机壳、下部装置组成。
运行部件---由料斗和专用圆环链条组成,链条抗拉强度高、耐磨性好。
驱动装置---采用多种驱动组合驱动,(依用户实际需要而定).驱动平台上装有检修架和栏杆。驱动制装置分左和右装两种。
上部装置---安装有轨道(双排链)、逆止器、卸料口装有防回料橡胶板。
中间节---部分中间节装有轨道(双链),以防止链条工作中摆动。
下部装置---安装有自动张紧装置。

TH型斗式提升机 ——ZH型(中深斗)一般使用于输送湿的、结块、较难抛出的物料,如湿砂、型砂、化肥、碱粉等。
TH型斗式提升机 ——SH型(深斗)一般使用于输送干燥的、松散易于抛出的物料,如水泥、碎石、煤块等。

我公司生产的HL型环链离心斗式提升机,由运动部分(料斗与牵引链条)、带有传动链轮的上部区段、带有拉紧轮的下部区段、中间机壳、驱动装置、逆止制动装置等组成(见下图)。本提升机的料斗为间断式布置,利用"掏取法"进行装载,"离心投料法"卸料。本提升机的牵引机构是两根环形链条.我公司生产的HL型环链离心斗式提升机,由运动部分(料斗与牵引链条)、带有传动链轮的上部区段、带有拉紧轮的下部区段、中间机壳、驱动装置、逆止制动装置等组成(见下图)。本提升机的料斗为间断式布置,利用"掏取法"进行装载,"离心投料法"卸料。HL型斗式提升机的牵引机构是两根环形链条。
| 项目 | |||||||||
| HL300 | HL400 | ||||||||
| S制法 | Q制法 | S制法 | Q制法 | ||||||
| 输送能力,平方米/小时 | 28 | 16 | 47.2 | 30 | |||||
| 料斗容量,升 | 5.2 | 4.4 | 10.5 | 10 | |||||
| 斗距,毫米 | 500 | 500 | 600 | 600 | |||||
| 运行部分(料斗牵引链条) 公斤/米 | 24.8 | 24 | 29.2 | 28.3 | |||||
| 牵引链条 | 型式 | 锻造环形链 | |||||||
| 圆钢直径(毫米) | 18 | 18 | |||||||
| 节距(毫米) | 50 | 50 | |||||||
| 破断强度(公斤) | 12800 | 12800 | |||||||
| 料斗运动速度(米/秒) | 1.25 | 1.25 | |||||||
| 传动链条轴转数(转/分) | 37.5 | 37.5 | |||||||
| 输送物料的散状比重 | H,米 | N,千瓦 | H,米 | N,千瓦 | H,米 | N,千瓦 | H,米 | N,千瓦 | |
| 0.8 | 59 | 6.35 | 64 | 4.36 | 30 | 7 | 33 | 6.3 | |
| 1.0 | 52 | 7.55 | 60 | 5.12 | 27 | 7.6 | 30 | 7 | |
| 1.25 | 41 | 8.7 | 49 | 5.3 | 23 | 8 | 26 | 7.6 | |
| 1.6 | 31 | 9.7 | 39 | 5.3 | 18.5 | 8.4 | 22 | 8.2 | |
| 2.0 | 24 | 9.7 | 29 | 5.35 | 15 | 8.6 | 18 | 8.4 | |
| 传动装置制法 | C1 | C2 | C3 | C4 | C1 | C2 | |||
| 圆柱齿轮减速机 | 传动装置右装 | JZQ400—IV—3U | JZQ400—IV—3U | ||||||
| 传动装置左装 | JZQ400—IV—4Y | JZQ400—IV—4Y | |||||||
| 电动机型号 | Y132M2—6 | Y160M—6 | Y160L—6 | Y160M—6 | Y160L—6 | ||||
| 传动装置功率(千瓦) | 5.5 | 7.5 | 7.5 | 7.5 | 7.5 | 7.5 | |||
| 棘轮制动装置(齿轮X模数) | 6X18 | 6X18 | 8X15 | 8X15 | 6X18 | 8X15 | |||
| 传动装置重量(公斤) | 628 | 702 | 870 | 885 | 902 | 917 | |||
| 物料的块度(毫米) | 25 | 35 | 45 | 55 | |||||
| 型号 | 输送量 | 料斗 | 传动链轮转速 r/min |
牵引部件 | |||||
| Zh m3/h |
Sh m3/h |
容积(L) | 斗距 mm |
环链规格 | 环钩规格 | 载荷 KN |
|||
| Zh | Sh | ||||||||
| TH160 | 8 | 10 | 1.2 | 1.9 | 355 | 65.8 | Φ12×45-7 | Φ12×40-M14 | ≥250 |
| TH250 | 30 | 48 | 3 | 4.8 | 512 | 46.8 | Φ18×64-7 | Φ18×64-M14 | ≥320 |
| TH315 | 37 | 58 | 3.7 | 5.8 | 512 | 42.5 | Φ18×64-7 | Φ18×64-M14 | ≥320 |
| TH400 | 58 | 92 | 5.9 | 9.4 | 512 | 37.6 | Φ18×64-7 | Φ18×64-M14 | ≥320 |
| TH500 | 81 | 129 | 9.3 | 15 | 688 | 35.8 | Φ22×86-7 | Φ22×86-M18 | ≥480 |
| TH630 | 144 | 207 | 14.6 | 23.5 | 688 | 31.8 | Φ22×86-7 | Φ22×86-M18 | ≥480 |
说明:
1.订货时除注明型号外,必须提供提升高度数据。
2.深斗式料斗适用于干燥松散物料,浅斗式料斗适用于潮湿粘性物料。


您在采购环链斗式提升机时,请将您需要的规格、型号告知生产厂家销售人员,他们会问提供详细报价作为参考依据,如果您对本设备不是很了解时,可将提升物料颗粒度大小,有无粘度,含水大小与提升量和提升高度,使用工况与安装环境告知我公司销售或技术人员,他们会帮您选型一款符合现场使用要求的环链斗式提升机。
Copyright ? 2008-2025 螺旋输送机厂家-新乡市大汉振动机械有限公司 All Rights Reserved 版权所有
网站备案号:豫ICP备09002479号-47
网址:http://nangqian.gnaubiiw.cn/新乡大汉机械厂家专业生产螺旋输送机、皮带输送机、提升机等机械







